了解最新公司动态及行业资讯
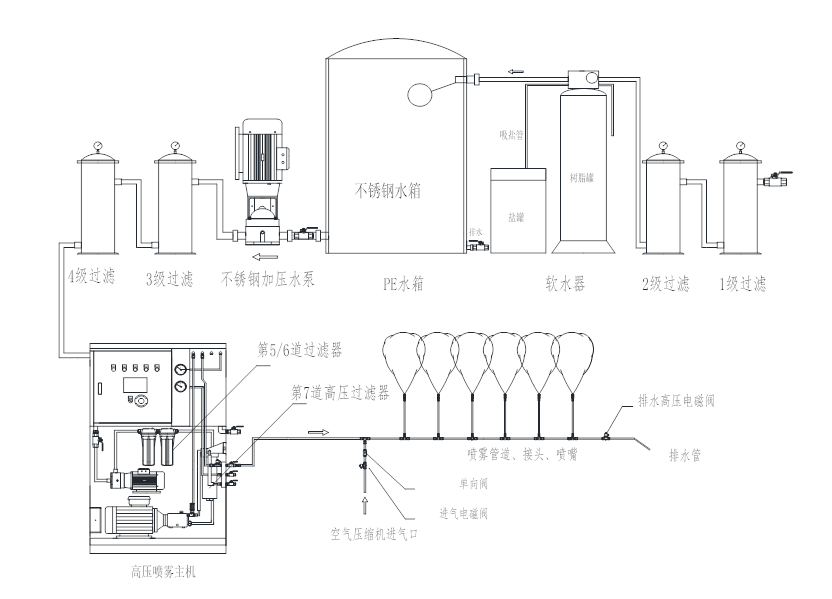
水质的好坏是决定整套高压喷雾抑尘系统正常运行的首要条件,在整个高压喷雾抑尘系统设计当中,水处理系统是非常关键的环节,为此我公司根据高压喷雾抑尘系统的特性,结合我公司产品的优势和多年的实际使用经验,打造出一整套节能、维护方便、处理效果好的高压水处理系统。


高压喷雾抑尘系统工作流程图
营业执照:91330103MA2KHTQT31
备案号码:浙ICP备2025170010号
地址:浙江省杭州市拱墅区东方茂商业中心2幢6层C105室
电话:13970479566
邮箱:634404490@qq.com
Q Q:634404490
上一篇:控制系统工作单元示意图
下一篇:微米级干雾抑尘系统的特点